Модульные лаборатории испытания взрывчатых веществ под ключ
Модульные лаборатории испытания взрывчатых веществ АРОСА
Блочно-модульные лаборатории испытания взрывчатых веществ АРОСА
Быстровозводимые лаборатории испытания взрывчатых веществ АРОСА
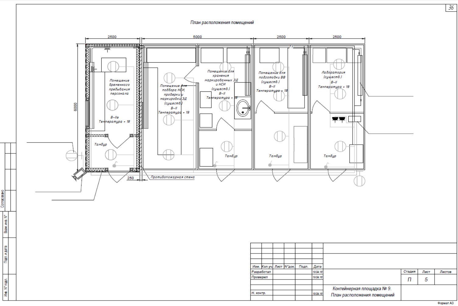
Модульная лаборатория испытания взрывчатых веществ (лаборатория испытания ВМ) АРОСА производится на базе блочно-модульных конструкций. Лаборатория испытания взрывчатых веществ (ВВ) позволяет проводить испытания и осуществлять анализ поступающих и производящихся взрывчатых материалов (ВМ), подготовленных для использования ВВ.
Модульная лаборатория испытания взрывчатых веществ АРОСА производится и комплектуется в соответствии со всеми нормами и правилами в области промышленной безопасности, в том числе может находится на особо опасном объекте (ОПО).
Модульная испытательная лаборатория взрывчатки АРОСА включает следующие методики испытаний:
|
Наименование вида испытаний и определяемых характеристик |
|
Определение чувствительности к удару |
|
Определение чувствительности к трению |
|
Определение температуры вспышки |
|
Определение температуры плавления, разложения |
|
Определение хим.стойкости |
|
Определение скорости детонации |
|
Определение теплоты взрыва |
|
Определение ударно-волновой чувствительности |
|
Определение критического диаметра детонации |
|
Определение технологических характеристик |
|
Определение климатических испытаний (Проведение испытаний и климатической камере; Проведение испытаний в климатической камере тепла, холода, влаги) |
Модульные взрывные комплексы включают следующие специализированные здания, сооружения и обособленные территории (ОПО):
· Модульный склад взрывчатых материалов (Склад ВМ):
· Модульная лаборатория базисного склада взрывчатых материалов (ВМ);
· Модульное здание выдачи средств инициирования (Склад СИ);
· Модульное здание подготовки взрывчатых материалов (ВМ);
· Модульное здание временного хранения и выдачи взрывчатых материалов (ВМ);
· Модульная лаборатория испытания взрывчатых веществ (ВВ);
· Лаборатория входного контроля взрывчатых веществ (ВВ);
· База хранения взрывчатых веществ (ВВ).
Блочное-модульное здание имеет комплектную поставку и представляет собой блочную конструкцию, состоящую из отдельных частей заданного назначения. Компания АРОСА разрабатывает конфигурацию модульного здания в индивидуальном порядке с сохранением технологического процесса.
Модульная лаборатория обеспечена:
· Электроснабжением (при необходимости взрывобезопасным);
· Отоплением (при необходимости взрывобезопасным);
· Средствами связи;
· Освещением (при необходимости взрывобезопасным);
· Пожарной сигнализацией;
· Средствами пожаротушения;
· Специализированной системой молниезащиты.
Этапы выполнения работ по поставке «Под ключ» модульной лаборатории:
Проектирование:
· Поможем составить Техническое задание на проектирование;
· Проконсультируем об основных требованиях к лаборатории;
· Разработаем технологический процесс лаборатории;
· Сформируем предварительное коммерческое предложение;
· Заключим договор на проектирование и изготовление лаборатории под ключ.
В течение нескольких дней вы получаете предпроектное решение, а именно:
· дизайн-проект,
· экспликация помещений,
· планировка рабочих мест,
· спецификация
Согласовав с заказчиком предпроектное решение, переходим к разработке необходимых разделов проекта лаборатории.
Производство модульного комплекса
Произведем блок модуль, в том числе:
· электротехнические работы;
· работы по монтажу системы отопления;
· монтаж сантехнических систем;
· монтаж системы вентиляции;
· монтаж системы кондиционирования;
· установка противопожарного обеспечения и молниезащиты;
· подготовка блок-модуля к транспортировке.
Доставка
· Доставим модульную лабораторию ЖД, авто или авиатранспортом;
· Сопроводим груз до места монтажа
Монтаж
· Установим и состыкуем блок-модули;
· Проведем окончательный монтаж инженерных систем, приточно-вытяжной вентиляции и кондиционирования, систем связи, пожарной сигнализации;
· Оснастим лабораторию оборудованием, приборами, специализированной мебелью и необходимыми расходными материалами.
Гарантийное обслуживание
· Обеспечиваем гарантию от производителя на модульную лабораторию и все установленное в ней оборудование;
· Оказываем техническую поддержку в процессе эксплуатации.
Для размещения заявки на проектирование, производство и монтаж нефтехимической лаборатории ООО “АРОСА” воспользуйтесь формой заявки или отправьте запрос на электронную почту: info1@npoarosa.ru.



