Модульные лаборатории пищевые под ключ
Модульная пищевая лаборатория АРОСА
Блочно-модульная пищевая лаборатория АРОСА
Быстровозводимая пищевая лаборатория АРОСА
Модульная лаборатория анализа продуктов питания (модульная пищевая лаборатория) АРОСА – это элемент системы контроля качества пищевой продукции, который позволяет получить аналитические данные о качестве и характеристиках продукта или технологического процесса его производства, данная лаборатория подтверждает, что производство пищевой продукции является безвредным для потребителей.
Модульная лаборатория пищевой продукции АРОСА – соответствует всем нормам и правилам в области эпидемиологической безопасности.
Модульная пищевая лаборатория АРОСА аккредитовывается на соответствие стандартам ГОСТ ИСО/МЭК 17025 (ISO / IEC 17025) «Общие требования к компетентности испытательных и калибровочных лабораторий».
Аккредитованная лаборатория позволяет устанавливать соответствие продукции ГОСТ и соответствию требованиям технических регламентов Таможенного союза таких как:
-
Технический регламент Евразийского экономического союза «О безопасности упакованной питьевой воды, включая природную минеральную воду» (ТР ЕАЭС 044/2017)
-
Технический регламент Таможенного союза "О безопасности молока и молочной продукции" (ТР ТС 033/2013)
-
Технический регламент Таможенного союза "О безопасности отдельных видов специализированной пищевой продукции, в том числе диетического лечебного и диетического профилактического питания" (ТР ТС 027/2012)
-
Технический регламент Таможенного союза "Пищевая продукция в части ее маркировки" (ТР ТС 022/2011)
-
Технический регламент Таможенного союза "На масложировую продукцию" (ТР ТС 024/2011)
-
Технический регламент Евразийского экономического союза «О безопасности рыбы и рыбной продукции» (ТР ЕАЭС 040/2016)
-
Технический регламент Таможенного союза "Требования безопасности пищевых добавок, ароматизаторов и технологических вспомогательных средств" (ТР ТС 029/2012)
-
Технический регламент Таможенного союза "На соковую продукцию из фруктов и овощей" (ТР ТС 023/2011)
-
Технический регламент Таможенного союза "О безопасности пищевой продукции" (ТР ТС 021/2011)
-
Технический регламент Таможенного союза "О безопасности зерна" (ТР ТС 015/2011)
-
Технический регламент Таможенного союза "О безопасности мяса и мясной продукции" (ТР ТС 034/2013)
Лаборатория позволяет проводить анализ пищевой продукции по следующим направлениям:
· Бактериологический анализ;
· Химический анализ;
· Физический анализ.
Общий анализ пищевой продукции может включать следующие методы:
1. Химическая аналитика;
2. Бактериологический анализ пищевых продуктов;
3. Анализ пищевой ценности;
4. Тестирование на пищевые аллергены;
5. Органолептический анализ
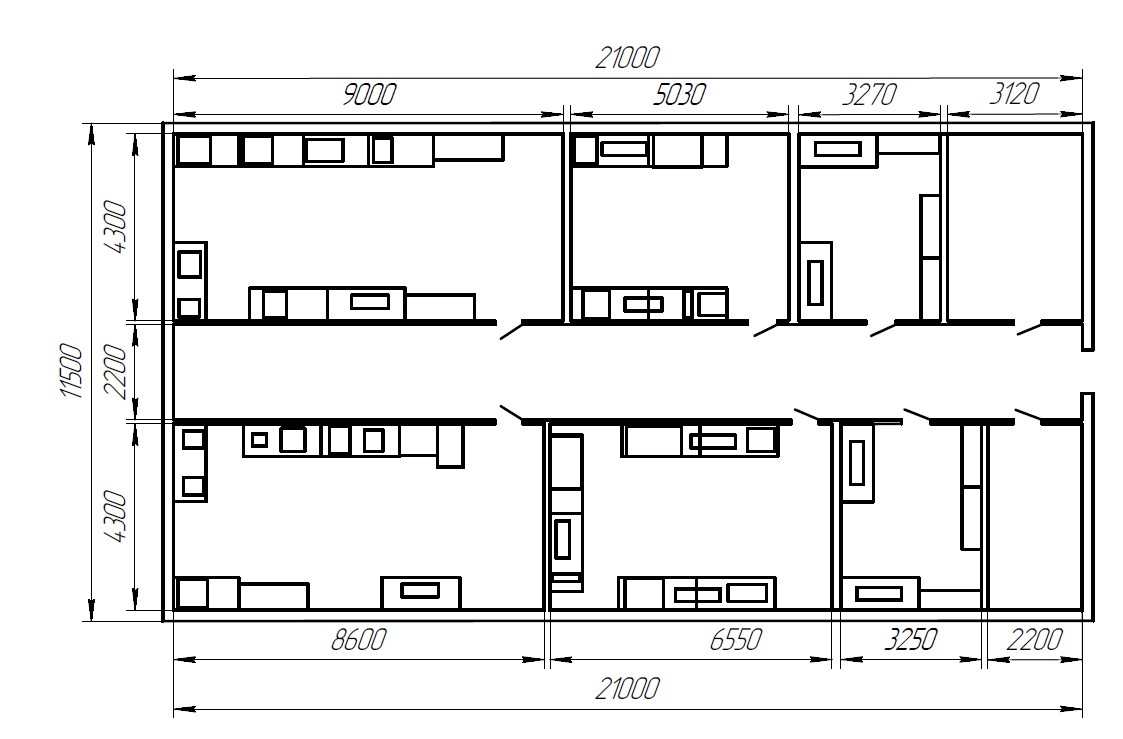
Здание модульной пищевой лаборатории АРОСА включает в себя следующие помещения:
1. Комната приема и передачи анализируемого материла;
2. Участок посевов;
3. Комната проведения бактериологических исследований;
4. Участок микроскопии;
5. Предбокс;
6. Комната хранения реактивов;
7. Стерилизационная;
8. Комната хранения химической посуды и лабораторных принадлежностей;
9. Санитарный пропускник с душем и раздевалками;
10. Участок анализа на пищевую ценность;
11. Участок анализа минералов и тяжелых металлов;
12. Участок анализа физико-химических показателей;
13. Участок органолептических исследований.
Модульная лаборатория обеспечена:
• Специализированной системой грязных стоков;
• Системой деконтоминации;
• Специализированной вентиляцией (вентиляция медицинского исполнения);
• Отделкой помещений по принципу «Чистые помещения»;
• Электроснабжением;
• Отоплением;
• Средствами связи;
• Освещением (бактерицидное освещение);
• Пожарной сигнализацией;
• Средствами пожаротушения;
• Специализированной системой молниезащиты.
Этапы выполнения работ по поставке «Под ключ» модульной лаборатории:
Проектирование:
· Поможем составить Техническое задание на проектирование;
· Проконсультируем об основных требованиях к лаборатории;
· Разработаем технологический процесс лаборатории;
· Сформируем предварительное коммерческое предложение;
· Заключим договор на проектирование и изготовление лаборатории под ключ.
В течение нескольких дней вы получаете предпроектное решение, а именно:
· дизайн-проект,
· экспликация помещений,
· планировка рабочих мест,
· спецификация.
Согласовав с заказчиком предпроектное решение, переходим к разработке необходимых разделов проекта лаборатории.
Производство модульного комплекса
Произведем блок модуль, в том числе:
· электротехнические работы;
· работы по монтажу системы отопления;
· монтаж сантехнических систем;
· монтаж системы вентиляции;
· монтаж системы кондиционирования;
· установка противопожарного обеспечения и молниезащиты;
· подготовка блок-модуля к транспортировке.
Доставка
· Доставим модульную лабораторию ЖД, авто или авиатранспортом;
· Сопроводим груз до места монтажа
Монтаж
· Установим и состыкуем блок-модули;
· Проведем окончательный монтаж инженерных систем, приточно-вытяжной вентиляции и кондиционирования, систем связи, пожарной сигнализации;
· Оснастим лабораторию оборудованием, приборами, специализированной мебелью и необходимыми расходными материалами.
Гарантийное обслуживание
· Обеспечиваем гарантию от производителя на модульную лабораторию и все установленное в ней оборудование;
· Оказываем техническую поддержку в процессе эксплуатации.
Для размещения заявки на проектирование, производство и монтаж лаборатории контроля качества пищевой продукции ООО “АРОСА” воспользуйтесь формой заявки или отправьте запрос на электронную почту: info1@npoarosa.ru.


